Sat, Apr 11th, 1:00 PM – 3:00 PM & Sun, Apr 12th, 1:30 PM – 3:30 PM
🏡
Sat, Apr 11th, 1:00 PM – 3:00 PM & Sun, Apr 12th, 1:30 PM – 3:30 PM 🏡
This home offers a functional layout with a finished basement and beautiful updates throughout. Major system improvements include a newer furnace (~2025), central A/C (~2019), water heater (~2021), a new dishwasher (2026), pre-inspected roof, and upgraded water line (~2026). Complete with a heated 2-car garage and freshly stained deck and fence (~2026), all in a great location with no HOA.
List Price: $475,000
IRES MLS# 1055867
STATUS: Coming Soon
Timeline
April 8, 2026… Coming Soon
April 10, 2026… Active
🛏 Four Bedrooms
🚽 Two Bathrooms
🚗 Two-Car Heated Garage
✨ Major Systems Updated
🐓 No HOA
Move-in ready with major system updates already completed, this well-maintained home offers no HOA and a functional layout designed for everyday living. Enjoy a spacious interior with updated finishes and a large finished basement, plus a beautifully landscaped backyard with a deck and storage shed.
Inside, you’ll find beautiful hard-surface flooring on the upper level, an updated kitchen, refreshed bathrooms, and modern fixtures. The finished basement features a large family room—perfect for additional living space, entertaining, or a home theater setup.
Major system updates provide peace of mind, including a newer furnace (~2025), central A/C (~2019), water heater (~2021), a new dishwasher (2026), composition roof (~2015) that has been recently inspected and certified, a recently replaced water service line (upgraded to copper in 2026), freshly stained fence and deck, new cedar shutters (2026), and a radon mitigation system already in place. 
The exterior continues to impress with a fully fenced backyard, updated landscaping, sprinkler system, large deck ideal for outdoor gatherings, and a generously sized storage shed with loft space. The heated two-car attached garage adds year-round comfort and everyday convenience.
Located just north of The Olde Course, enjoy easy access to Centennial Elementary, nearby parks, shopping, and dining, and close proximity to Centennial Pool (membership required).
Image Gallery
Video Tour
Location
Open Houses
Saturday, April 11, 1:00 PM – 3:00 PM
Hosted by: Nate Davis
Sunday, April 12, 1:30 PM – 3:30 PM
Hosted by: Eric Tutsch
Open house dates and times are subject to change. Please check back for the most up-to-date schedule.
Documents
Additional documents are available for licensed brokers on IRES, MLS.
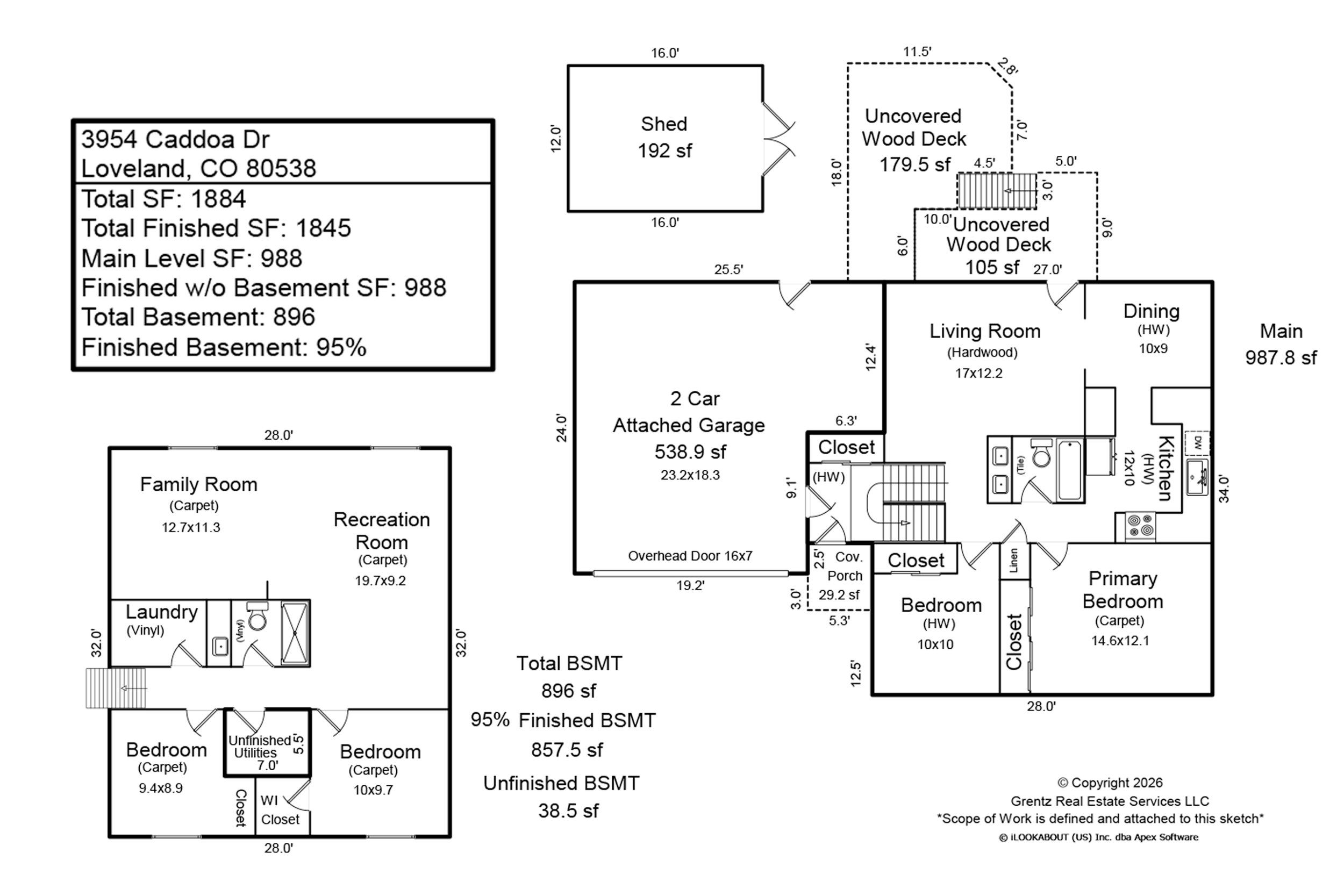
Floor Plan & Measurements
Inclusions/Exclusions
Inclusions: existing window coverings, electric range/oven, dishwasher, refrigerator, microwave, clothes washer, clothes dryer, security system (owned), garage door opener, disposal, smoke alarm(s), swing set, garage shelving, shadow box shelving (basement), tv mount (basement), wall shelving (basement family room)
Exclusions: staging props
Details
General Features
Type Legal Conforming, Contemporary/Modern
Style Bi-Level
Baths One Full | One 3/4
Acreage 0.18 Acres
Lot Size 7,722 SqFt
Zoning R1-UD
Total 1,884 SqFt
Finished 1,845 SqFt
Basement Full Basement, 90%+ Finished Basement, Retrofit for Radon
Garage 2 Space(s)
Garage Type Attached
Year Built 1992
New Construction NoConstructionWood/Frame, Composition Siding
Cooling Central Air
Heating Forced Air
Roof Composition Roof
Taxes & Fees
Taxes $2,489
Tax Year 2025
Metro District No
Schools
School District Thompson R2-J
Elementary Centennial (R2-J)
Middle/Jr High Erwin, Lucile
Senior High Loveland
Rooms
Primary Bedroom 12 x 15 (Main Floor)
Bedroom 2 10 x 10 (Main Floor)
Bedroom 3 10 x 10 (Basement)
Bedroom 4 9 x 9 (Basement)
Kitchen 10 x 12 (Main Floor)
Living Room 12 x 17 (Main Floor)
Dining Room 9 x 10 (Main Floor)
Family Room 11 x 13 (Basement)
Rec. Room 9 x 20 (Basement)
Note: All room dimensions, including square footage data, are approximate and must be verified by the buyer.
Outdoor Features
Lawn Sprinkler System, Storage Buildings, Deck
Lot Features
Deciduous Trees, Level Lot, House/Lot Faces SW, Within City Limits
Design Features
Eat-in Kitchen, Open Floor Plan, Washer/Dryer Hookups, Wood Floors, Split Bedroom Floor Plan
Fireplace
No Fireplace






























