This charming brick ranch with mid-century modern curb appeal offers exceptional space and flexibility at an incredible price point. Featuring two primary suites—one on the main level and another in the basement—this home is ideal for multi-generational living, guests, or rental potential.
List Price: $500,000
IRES MLS# 1057732
STATUS: Coming Soon
Timeline
April 29, 2026… Coming Soon
May 1, 2026… Active
🛏 5 Bedrooms
🚽 3 Bathrooms
✨ Beautifully Updated
🐓 No HOA/Metro
This charming brick ranch with mid-century modern curb appeal offers exceptional space and flexibility at an incredible price point. Featuring two primary suites—one on the main level and another in the basement—this home is ideal for multi-generational living, guests, or rental potential. No HOA and no Metro Tax!
The beautifully updated kitchen shines with modern finishes, while the inviting living room features a stylishly updated wood-burning fireplace that adds warmth and character. Enjoy multiple living spaces including a sunken family room, a spacious rec room in the basement, and a bright sunroom perfect for year-round enjoyment of Colorado’s sunshine.
The finished basement showcases a beautiful wood ceiling that adds warmth and character, and includes two bedrooms, a bathroom, a spacious laundry room with a utility sink, and an unfinished storage area. Additional updates include brand new carpet and a brand new Class 4 roof, making this home truly move-in ready.
Situated on a 6,946 sq ft lot in an established neighborhood with mature trees, the fully fenced backyard includes a deck and storage shed—perfect for relaxing, entertaining, and extra storage. Ideally located just north of W 22nd St and east of Wilson Ave, you’re close to Mehaffey Park and Lake Loveland, with an easy commute to Fort Collins. A two-car attached garage is complemented by a south-facing driveway, helping snow melt more quickly in the winter for added convenience.
Visit the property website for a video tour, full photo gallery, floor plan, 3D tour, and more. Don’t miss your opportunity to own a fantastic home or secure a smart investment!
Image Gallery
On mobile devices, tap the dot in the bottom-right corner of your screen to view captions after opening a photo.
Video Tour
3D Tour
On your desktop, click the “expand” icon in the bottom-left corner to switch to full-screen mode.
Location
Open Houses
There are no open houses scheduled at this time.
Open house times are subject to change. Please check back here for the most accurate schedule.
Documents
Additional documents are available for licensed brokers on IRES, MLS.
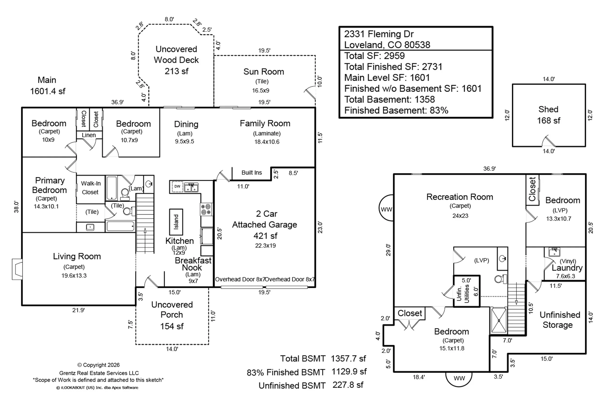
Floor Plan & Measurements
Inclusions/Exclusions
Inclusions: window coverings (blinds, curtains, rods), electric range/oven, dishwasher, refrigerator, microwave, garage door opener, fireplace tools, disposal, smoke alarm(s), coat hooks/shelf in the living room
Exclusions: seller’s personal property, storage shelving, garage shelving, clothes washer, clothes dryer
Details
General Features
Type Contemporary/Modern
Style 1 Story/Ranch
Baths 2 Full | 1 3/4
Acreage 0.16 Acres
Lot Size 6,946 SqFt
Zoning R1
Total 2,959 SqFt
Finished 2,731 SqFt
Basement Partial Basement, Full Basement, 75%+Finished Basement, Radon Unknown, Sump Pump
Garage 2 Space(s)
Garage Type Attached
Year Built 1973
New Construction No
Construction Wood/Frame, Brick/Brick Veneer, Composition Siding
Cooling Evaporative Cooler, Ceiling Fan
Heating Forced Air
Roof Composition Roof
Taxes & Fees
Taxes $2,563
Tax Year 2025
Metro District No
Schools
School District Thompson R2-J
Elementary Namaqua
Middle/Jr High Bill Reed
Senior High Loveland
Rooms
Primary Bedroom 10 x 14 (Main Floor)
Bedroom 2 9 x 10 (Main Floor)
Bedroom 3 9 x 11 (Main Floor)
Bedroom 4 12 x 15 (Basement)
Bedroom 5 11 x 13 (Basement)
Kitchen 9 x 12 (Main Floor)
Living Room 13 x 20 (Main Floor)
Dining Room 10 x 10 (Main Floor)
Laundry Room 6 x 8 (Basement)
Family Room 11 x 18 (Main Floor)
Rec. Room 23 x 24 (Basement)
Note: All room dimensions, including square footage data, are approximate and must be verified by the buyer.
Outdoor Features
Lawn Sprinkler System, Deck
Lot Features
Evergreen Trees, Deciduous Trees, House Faces South, Within City Limits
Design Features
Eat-in Kitchen, Separate Dining Room, Walk-in Closet, Washer/Dryer Hookups, Kitchen Island, Two Primary Suites, Sunroom
Accessibility
Main Floor Bath, Main Level Bedroom
Fireplace
Living Room Fireplace






























